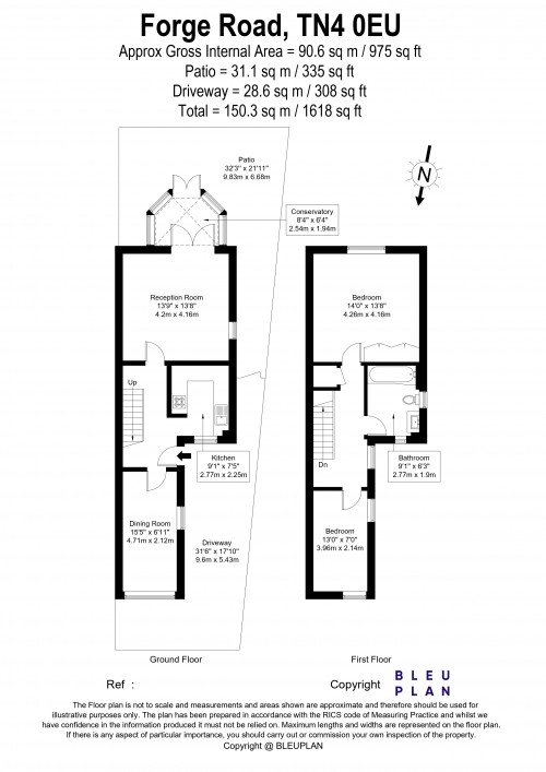
Floorplan for Forge Road, Tunbridge Wells, TN4
Let Agreed

Floorplan for Tunbridge Wells, TN4
View Floorplan View EPC
Enquire Now Call Us
Take me There More Images
Back to Top Search Again
Virtual Tour